Properties
Search All Real Estate Listings in the Middle Tennessee Area with The Global Partners Group of eXp. Homes for Sale in Nashville, Brentwood, Franklin, Murfreesboro, Nolensville, Lebanon and more. Luxury Homes, Estate’s, Mansions, New Construction, Existing Homes, Land, Farms, Townhomes and Condo’s. Use the search bar below to search any location or click on one of the popular links below.
524 Hinton StreetLebanon, TN 37090




Mortgage Calculator
Monthly Payment (Est.)
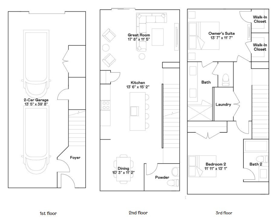
$1,392One Lebanon Place is an exciting new master-planned community redeveloped from the Lebanon Outlet Mall, with restaurant, cafe, and retail space, in addition to green space, playground, dog park, pavillion, and grills. These brand new 2-car garage townhomes offer the convenience and lifestyle you've been looking for!This Gatlinburg floorplan features a spacious great room, dining room, and kitchen for entertaining friends, with 2 bedrooms, 2 full baths, plus a half bath. The kitchen is designed with a huge island for seating, 42" shaker style cabinetry, quartz tops, tile backsplash, and stainless steel kitchen appliances. A luxurious primary suite with ceramic tile floor, executive height cabinets, double vanity and quartz top, and oversized walk-in ceramic tile shower. Generously sized second bedroom with private bathroom. LVP flooring in main living areas, LVT in secondary baths and laundry. Luxurious features throughout! Ring doorbell, Schlage keyless entry, Honeywell WIFI thermostat, and more! 2" faux wood blinds on operable windows and stainless steel refrigerator included!
| 22 hours ago | Listing first seen on site | |
| 22 hours ago | Listing updated with changes from the MLS® |
Listings courtesy of Realtracs as distributed by MLS GRID
Based on information submitted to the MLS GRID as of 2026-01-14 12:46 PM UTC. All data is obtained from various sources and may not have been verified by broker or MLS GRID. Supplied Open House Information is subject to change without notice. All information should be independently reviewed and verified for accuracy. Properties may or may not be listed by the office/agent presenting the information.
The Digital Millennium Copyright Act of 1998, 17 U.S.C. § 512 (the “DMCA”) provides recourse for copyright owners who believe that material appearing on the Internet infringes their rights under U.S. copyright law. If you believe in good faith that any content or material made available in connection with our website or services infringes your copyright, you (or your agent) may send us a notice requesting that the content or material be removed, or access to it blocked. Notices must be sent in writing by email to DMCAnotice@MLSGrid.com.
The DMCA requires that your notice of alleged copyright infringement include the following information: (1) description of the copyrighted work that is the subject of claimed infringement; (2) description of the alleged infringing content and information sufficient to permit us to locate the content; (3) contact information for you, including your address, telephone number and email address; (4) a statement by you that you have a good faith belief that the content in the manner complained of is not authorized by the copyright owner, or its agent, or by the operation of any law; (5) a statement by you, signed under penalty of perjury, that the information in the notification is accurate and that you have the authority to enforce the copyrights that are claimed to be infringed; and (6) a physical or electronic signature of the copyright owner or a person authorized to act on the copyright owner’s behalf. Failure to include all of the above information may result in the delay of the processing of your complaint.
Nashville Area New Construction Homes for Sale
Looking for new construction homes for sale in the Nashville area? We have a wide selection of properties available in some of the most sought-after areas around.
Check out Murfreesboro, Smyrna, Lascassas, Nolensville, Lebanon, Mount Juliet, Nashville, Brentwood, and Franklin to find your dream home. Each area offers its own unique charm and attractions, from the historic streets of Franklin to the booming urban landscape of Nashville.
Whether you’re looking for a quiet, family-friendly community or a bustling city center, we have something for everyone. Browse our selection of new construction homes in the Nashville area and find your perfect match today.
Nashville Area Luxury Homes for Sale
If you’re searching for luxury homes for sale in the Nashville area, you’ve come to the right place. Our selection of properties spans some of the most desirable neighborhoods in the region, including Nashville, Brentwood, Franklin, Mt Juliet, Lebanon, Nolensville, Arrington, Murfreesboro, Gallatin, and Hendersonville.
Each area has its own unique character, from the bustling city life of Nashville to the quiet countryside of Arrington. Our luxury homes feature top-of-the-line amenities and unparalleled attention to detail, ensuring that your every need is met. Browse our selection of Nashville area luxury homes for sale and find the perfect property to suit your lifestyle today.
Contact Us

Did you know? You can invite friends and family to your search. They can join your search, rate and discuss listings with you.